21720 SW 118th Ave, Miami FL 33170
Residential at RANDOLPHS ADDN TO GOULDS in Miami
$6,500,000
n/a
n/a
n/a
Residential, Land/Boat Docks
Детали
Обзор
Описание
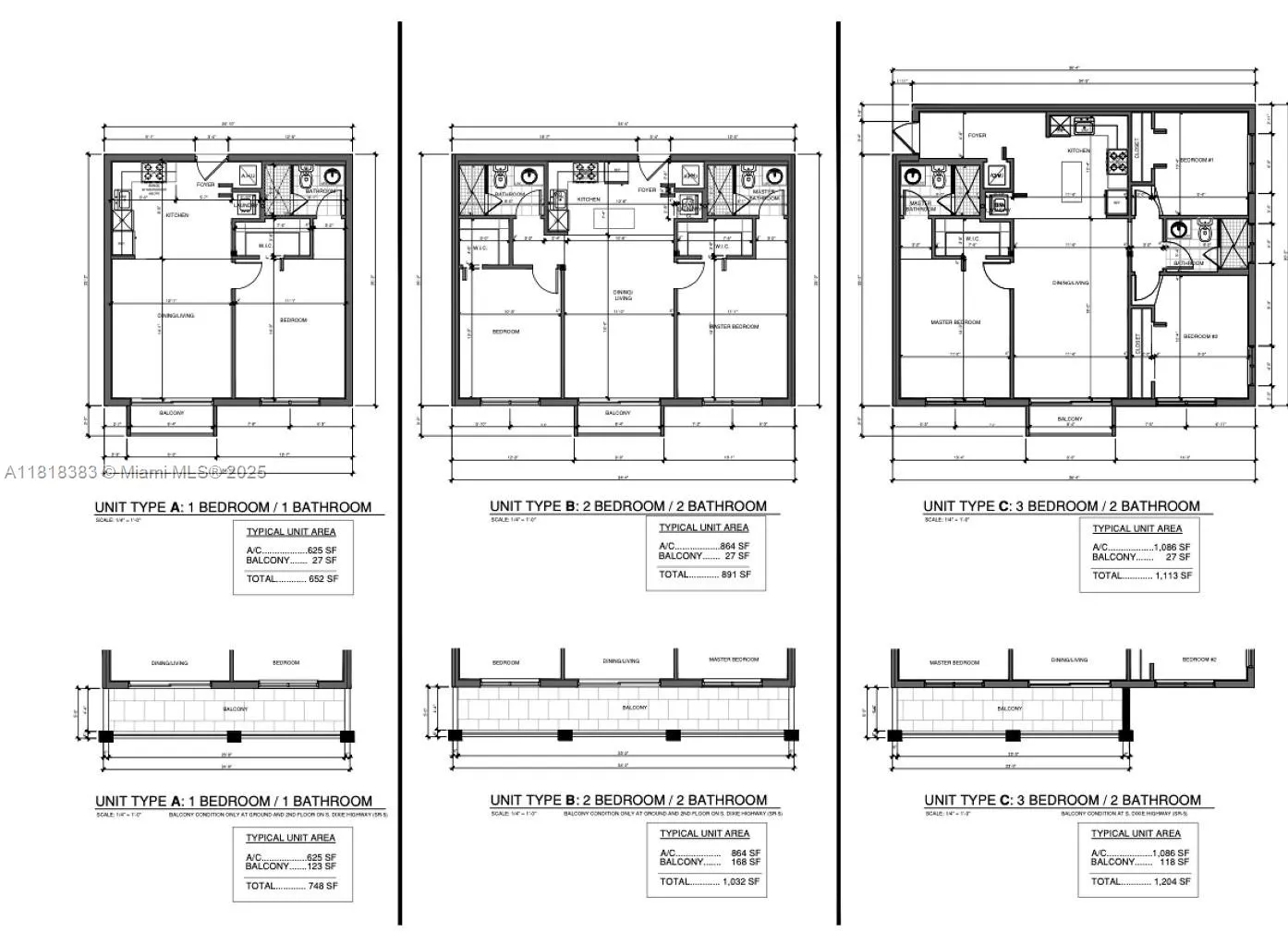
The Corner at US1 is a premier development opportunity located on a high-traffic, signalized corner along So. Dixie Hwy(US1) in unincorporated MD County. Site: spans +/-1 contiguous acres, assembled through Unity of Title, dual zoning (RM & MC) that support a broad range of residential & mixed-use development options. Site Plan Approval (ASPR) has already been secured for a modern 9-story building featuring: 123 residential units / 1,755 SF of ground-fl retail / Attached structured parking garage. Architectural & engineering plans are being finalized, with permit approvals expected within approx 90 days. Developers will be positioned to proceed to vertical construction upon issuance. Great access and visibility in area with strong demographic growth.
This residential home located at 21720 SW 118th Ave, Miami FL 33170 is currently for sale and it is a new listing on Brickellsold listed today. This property is listed at $7M. It has N/A beds, N/A bathrooms, and is N/A square feet. 21720 SW 118th Ave, Miami FL 33170 is in Miami county Miami-Dade County.
Интерьер
- Flooring:
- Common walls with other units/homes:
Объект
- Parking Features:
- Entry location:
- Exterior Features:
- View Description:
строительство
Сообщество и HOA
- Security Features:
- Subdivision: RANDOLPHS ADDN TO GOULDS
- Amenities:







