1917 Harding St, Hollywood FL 33020
Residential at HOLLYWOOD ESTATES in Hollywood
$715,000
Brickellsold Estimate* (fallback: list price)$715,000 (list price)
For Sale
спальни
n/a
ванные
n/a
Квадратные метры
n/a
Тип объекта
Residential, Land/Boat Docks
Детали
Обзор
Sub Type
Residential
Taxes
$8,515/yr
Описание
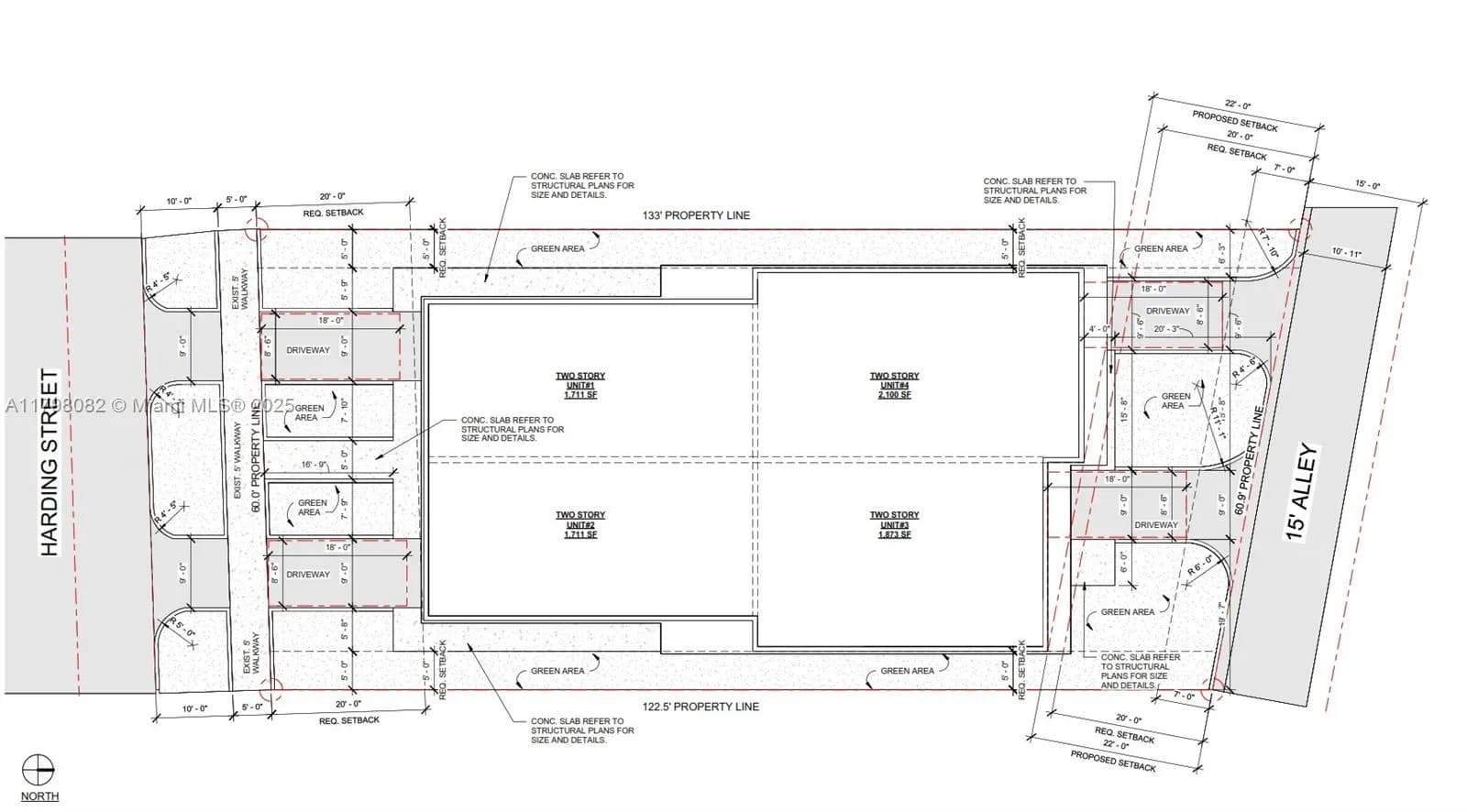
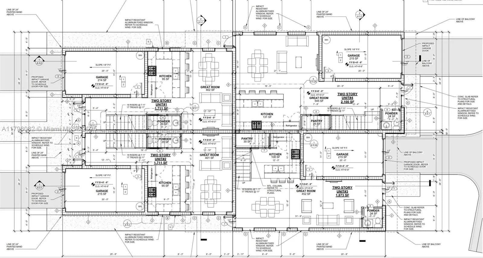
Approved plans with construction documents to build a 4-unit building. All units are 3-bedroom 2.5 bathrooms, plus a garage. The total living area is 5,964 sq ft, and the total gross area is 7395 sq ft. Plans are attached.
This residential home located at 1917 Harding St, Hollywood FL 33020 is currently for sale and has been available on Brickellsold for 262 days. This property is listed at $715K. It has N/A beds, N/A bathrooms, and is N/A square feet. 1917 Harding St, Hollywood FL 33020 is in Hollywood county Broward County.
Интерьер
Features
- Flooring:
- Common walls with other units/homes:
Heating
Cooling
Appliances
Объект
Parking
- Parking Features:
Parcel Number
514210300340
Features
- Entry location:
- Exterior Features:
- View Description:
строительство
Property subtype
Residential, Land/Boat Docks
Materials
Condition
Сообщество и HOA
Community
- Security Features:
- Subdivision: HOLLYWOOD ESTATES
HOA
- Amenities:
Region
Hollywood
Финансовые
Taxes
$8,515/yr
On Market Date
5/5/2025
Listing Terms
All Cash, Conventional, Cryptocurrency
Метаданные
Added
5/6/2025
Updated
1/23/2026
MLS#
A11798082
Days on Market
262
Listed By
RE/MAX 5 Star Realty
Originating MLS
A-Miami Association of REALTORS






