6303 SW 43rd St, South Miami FL 33155
South Miami, Miami-Dade County
$800,000
3
2
1539
Single Family Residence, Residential
Детали
Обзор
Описание
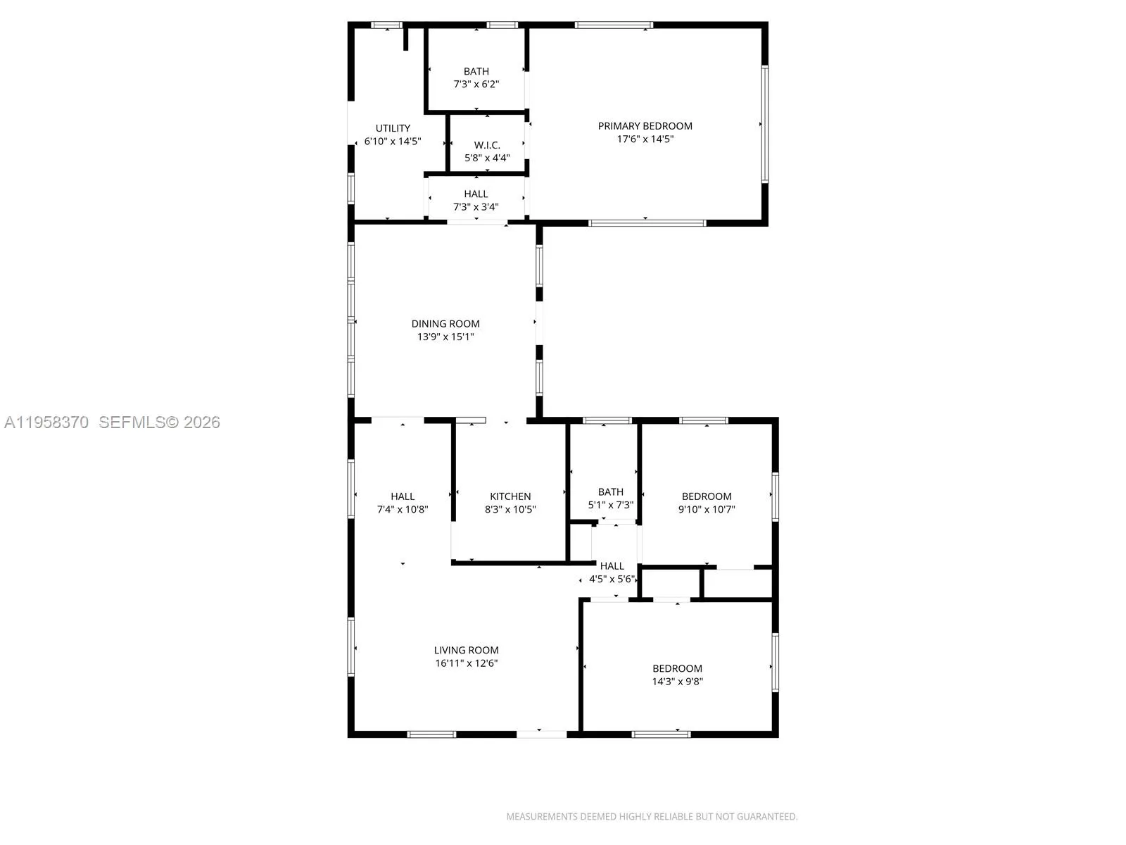
Located in the desirable Bird Road Estates area of South Miami, this well-maintained corner-lot home offers comfort, versatility, and prime location. Featuring 3 bedrooms and 2 bathrooms, the bright, functional layout provides spacious living areas filled with natural light. Situated on a generous corner lot, the property offers added privacy and outdoor space ideal for entertaining or relaxing. The floor plan allows for multi-generational living or a house-hacking opportunity with income potential. Conveniently located near top-rated schools, parks, shopping, dining, Coral Gables, the University of Miami, and major roadways.
This single family residence home located at 6303 SW 43rd St, South Miami FL 33155 is currently for sale and has been available on Brickellsold for 17 days. This property is listed at $800K. It has 3 beds, 2 bathrooms, and is 1539 square feet. It was built in 1950. 6303 SW 43rd St, South Miami FL 33155 is in South Miami county Miami-Dade County.
Интерьер
- Flooring: Carpet, Tile
- Common walls with other units/homes: Detached, One Story
Объект
- Parking Features: Additional Spaces Available,Driveway
- Entry location: First Floor Entry, Family Room, Separate Guest/In-Law Quarters
- Exterior Features:
- View Description: None
строительство
- Year Built: 1950
Сообщество и HOA
- Security Features:
- Subdivision: BIRD ROAD ESTATES
- Amenities:







