639 Almeria Ave, Coral Gables FL 33134
$4,100,000
4
4
4
4






























3485
Townhouse, Residential
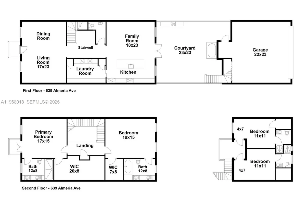
Almeria Row, a collection of luxury townhomes, has garnered architectural awards, and accolades and has been featured in magazines and commercials. The floor plan consists of 2/2.5 main house plus a 2/2 beyond the courtyard and above the garage. Its a wonderful location with close distance to restaurants, shops, parks and the golf course. The unit features 11 and 17 foot ceilings, wood floors, impact windows/doors and a rear access 2 car garage. Garden courtyard includes built in barbeque which is perfect for dining al fresco. Unit includes furniture from Artefacto and patio furniture from Brown Jordan.
This townhouse home located at 639 Almeria Ave, Coral Gables FL 33134 is currently for sale and has been available on Brickellsold for 16 days. This property is listed at $4M. It has 4 beds, 4 bathrooms, and is 3485 square feet. It was built in 2016. 639 Almeria Ave, Coral Gables FL 33134 is in Coral Gables county Miami-Dade County.