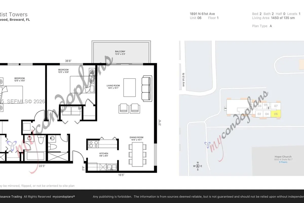
1891 N 61st Ave # B106, Hollywood FL 33024 - MLS# A11925765 - FOR SALE | Brickellsold